產品介紹
1. 閥組專用于火力發電廠、石油化工等需要高可靠性雙向金屬密封的大口徑管道系統作啟閉用。
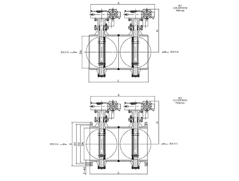
2. 閥組由2臺層疊型金屬密封電動蝶閥組成2臺閥門均為高可靠性單向密封蝶閥,采用密封方向相反組合,從而實現了高可靠性的雙向金屬密封。
3. 閥組有法蘭式和對焊式兩種結構形式供用戶選擇。其中對焊式體積小、重量輕、節省安裝空間減少了泄漏點;法蘭式便于維修拆卸。
4. 閥組采用電動蝶閥,由用戶的電控系統實現閥組2臺蝶閥的同步啟閉,用戶應在合同中詳細注明電動裝置的性能要求。



1. 閥組專用于火力發電廠、石油化工等需要高可靠性雙向金屬密封的大口徑管道系統作啟閉用。
2. 閥組由2臺層疊型金屬密封電動蝶閥組成2臺閥門均為高可靠性單向密封蝶閥,采用密封方向相反組合,從而實現了高可靠性的雙向金屬密封。
3. 閥組有法蘭式和對焊式兩種結構形式供用戶選擇。其中對焊式體積小、重量輕、節省安裝空間減少了泄漏點;法蘭式便于維修拆卸。
4. 閥組采用電動蝶閥,由用戶的電控系統實現閥組2臺蝶閥的同步啟閉,用戶應在合同中詳細注明電動裝置的性能要求。


