產品介紹
產品介紹:
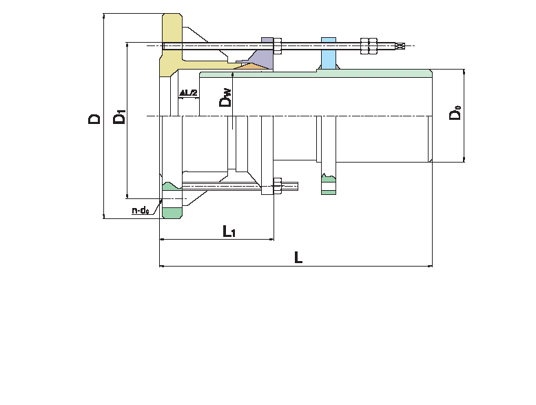
1. 限位伸縮器(又名伸縮節),在管道允許伸縮量中可以自由伸縮,一旦越過其最大伸縮量就起到限位,確保管道的安全運行特別在有振動或有一定斜度及在拐彎的管路中的連接尤為適用。
2. 單法蘭限位伸縮器是在管道伸縮器原有性能的基礎上,增設限位裝置,在最大伸縮量處用雙螺母鎖定,起到限位作用。伸縮器一端法蘭連接另一端與管道對焊連接。



產品介紹:
1. 限位伸縮器(又名伸縮節),在管道允許伸縮量中可以自由伸縮,一旦越過其最大伸縮量就起到限位,確保管道的安全運行特別在有振動或有一定斜度及在拐彎的管路中的連接尤為適用。
2. 單法蘭限位伸縮器是在管道伸縮器原有性能的基礎上,增設限位裝置,在最大伸縮量處用雙螺母鎖定,起到限位作用。伸縮器一端法蘭連接另一端與管道對焊連接。


